Financier
- Prix
- Faire offre à partir de € 299.000,00
- Sous régime TVA
- Non
- Disponible
- à l'acte
- Charges commune
- € 80,00/mois
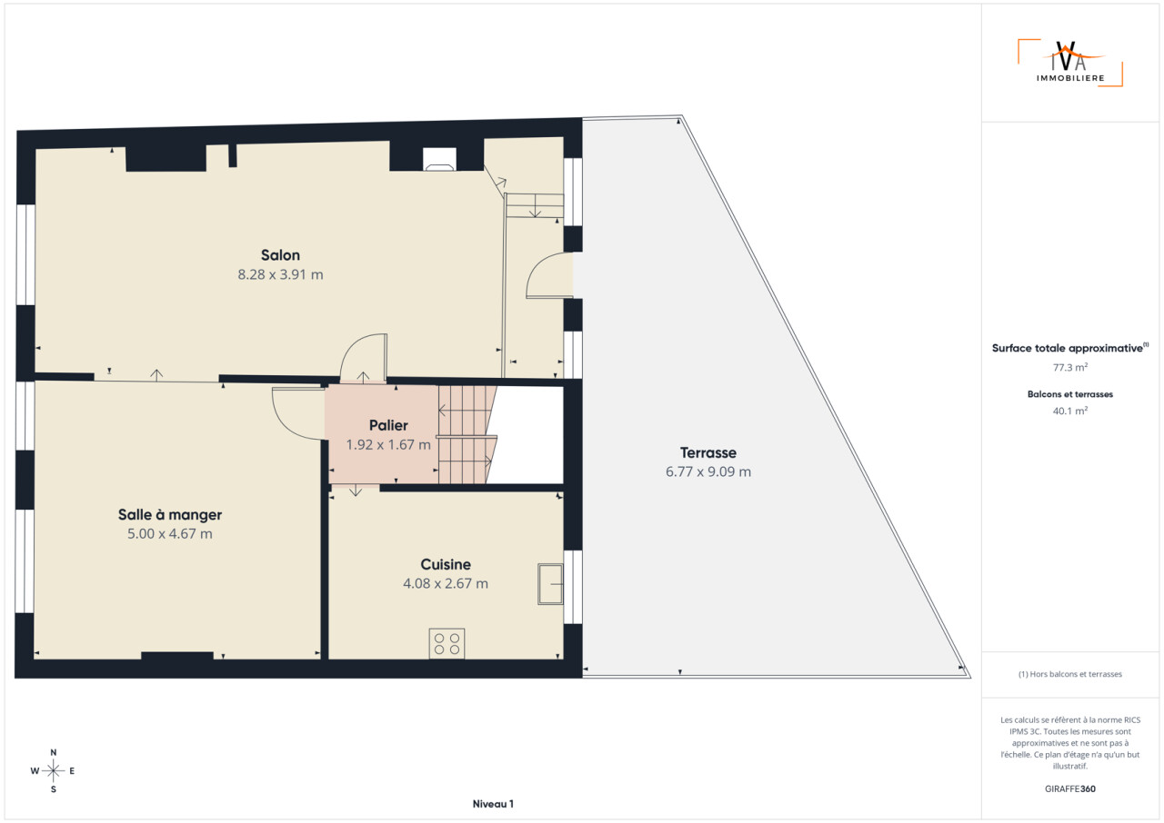
Au cœur de Braine-le-Château, à proximité des grands axes, IVA vous propose ce spacieux duplex atypique de ±170 m², apprécié pour ses volumes, sa luminosité et son potentiel après rafraîchissement. Situé dans une petite copropriété de 3 lots, il se développe sur plusieurs niveaux et bénéficie d’une configuration originale.
L’entrée dessert un hall donnant accès à une cave privative de ±40 m².
À l’entre-étage se trouvent une grande buanderie, un WC séparé et un espace vestiaire. Le premier étage accueille un vaste séjour en L de 60 m², lumineux, équipé d’un insert à bois et donnant accès à une terrasse de ±30 m², idéale pour profiter des beaux jours, ainsi qu’une cuisine de 13 m².
Le deuxième étage est consacré à l’espace nuit et comprend trois chambres (20, 15 et 12,5m²), une salle de bains avec douche et toilette, et un espace de rangement avec placards intégrés.
Deux greniers accessibles par escaliers escamotables complètent l’ensemble et offrent un espace de stockage appréciable.
Le bien dispose de châssis bois DV, d’une chaudière au gaz et de faibles charges communes. L’installation électrique n’est pas conforme.
Ses atouts sont sa superficie, son séjour lumineux, ses trois chambres, ses nombreux rangements et sa situation centrale proche des commodités, écoles et transports.
Après rafraîchissement, ce duplex offre la possibilité de créer un intérieur à votre image.
* FO à partir de 299.000 €* sous réserve d’acceptation des propriétaires.
Contactez-nous pour une visite.
