Maison
Faire offre à partir de € 350.000 (En option)

Borreweidestraat 55, 1500 Hal
    • partager

Description Ref.: 7571716

VENDU PAR IVA - COMMISSION DE VENTE DE 1 à 2% HTVA


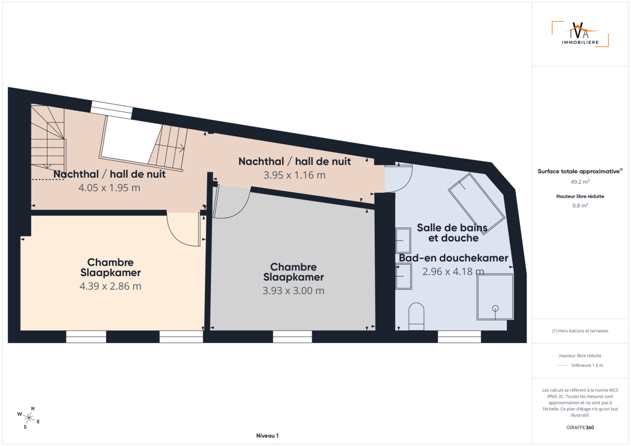
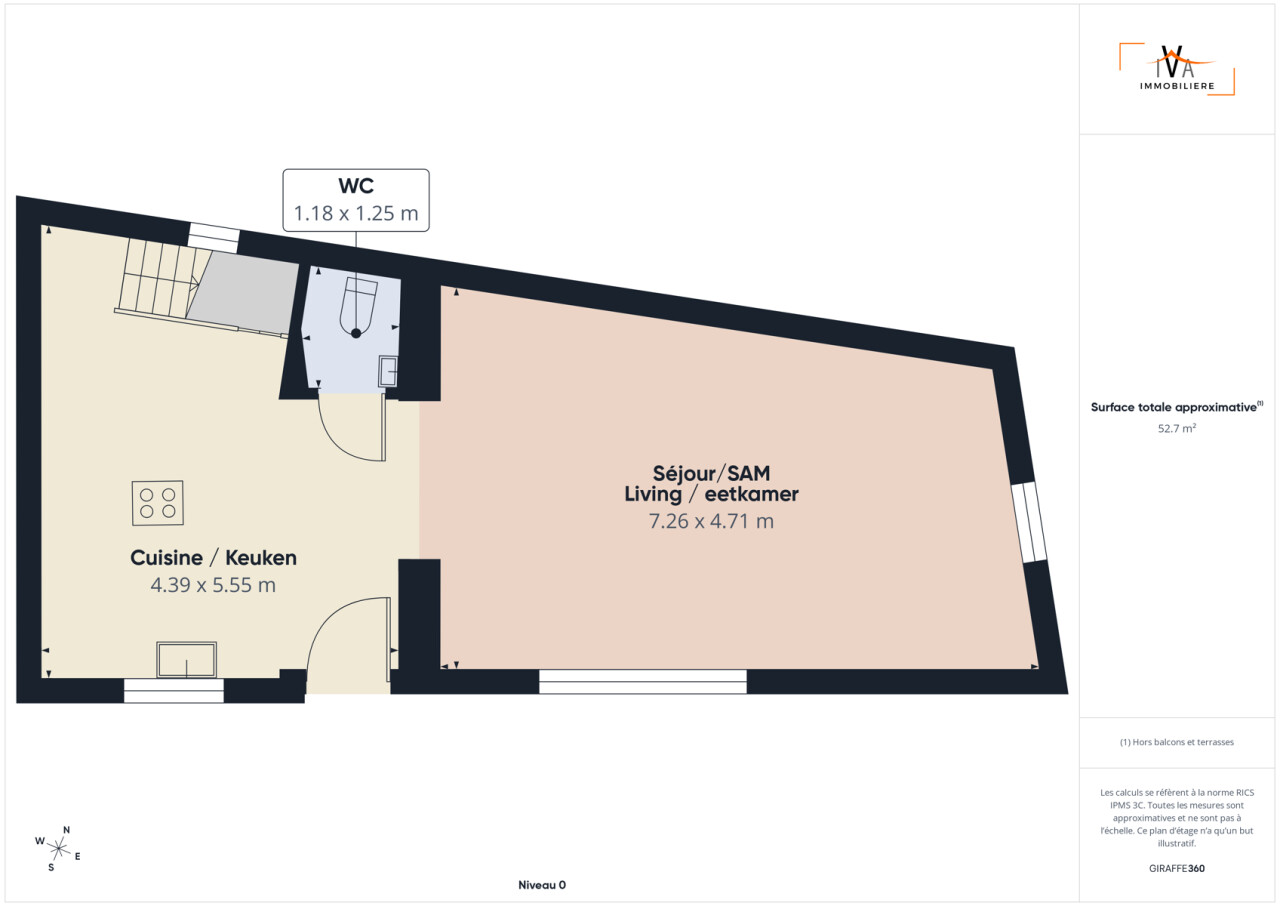
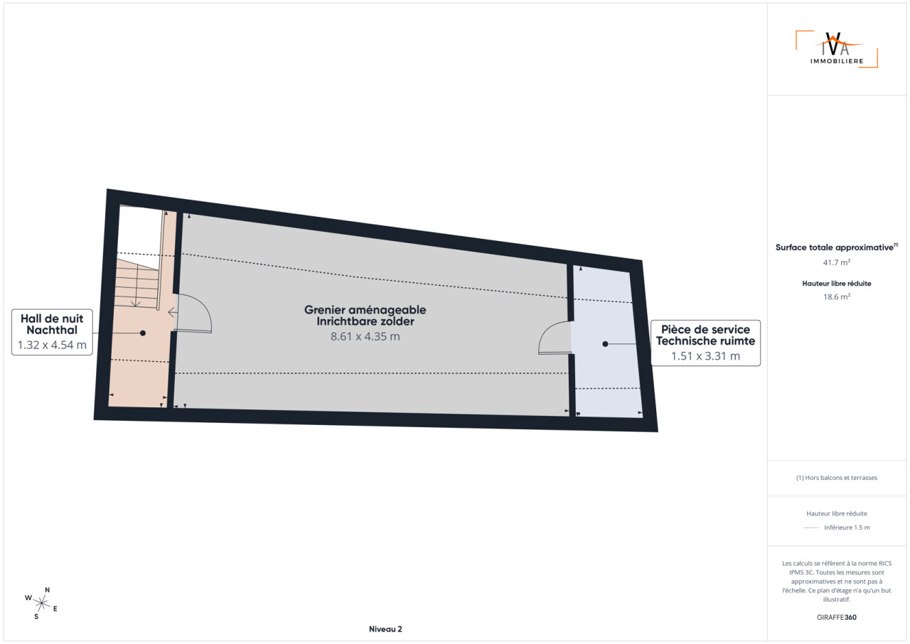
*** VENDU PAR IVA - COMMISSION DE VENTE DE 1 à 2% HTVA*** A proximité de la gare de Lembeek et de toutes les commodités, IVA vous propose cette charmante maison 3 façades entièrement rénovée de 144 m² habitables sur un terrain de 4 ares environ. Située au calme avec vue sur les champs, celle-ci est accessible via un chemin piéton. Le rez-de-chaussée offre un grand séjour lumineux et une salle à manger ouverte sur une cuisine entièrement équipée et récente. À l’étage, le hall de nuit dessert 2 chambres confortables (12 et 13 m²) et une salle de bains moderne avec baignoire et douche, parfaite pour un cadre familial. Un escalier fixe mène au grenier aménageable et isolé (25 m²), offrant la possibilité de créer une chambre et une salle de bains supplémentaires. Au niveau des extérieurs, on retrouve une belle terrasse aménagée et un jardin principal avec cabanon entièrement isolé, idéal comme atelier ou espace professionnel. La maison bénéficie également d'un jardin supplémentaire, parfait pour un potager ou des activités de loisirs et d'une cave de rangement. Equipements et caractéristiques : poêle à pellets, chaudière à condensation au gaz (2023), adoucisseur d'eau, électricité CONFORME, PEB C, absence d'amiante. *** Prix de vente : Faire offre à partir de 350.000 EUR *** Contactez-nous pour organiser une visite au 02/850.03.63 et découvrir cette belle opportunité.


Votre contact

Plus d'info ref: 7571716
contact

Détails de la propriété

Financier

Prix
Faire offre à partir de € 350.000,00
Disponible
à l'acte
Revenu cadastral
€ 650,00
Profession libérale possible
Oui

Localisation géographique

Environnement
Campagne

Bâtiment

Surface habitable
144,00 m²
Façades
3
Année de construction
1870
Rénovation
2022
État
Remis à neuf
Étages
2
Surface nette
144,00 m²
Surface brute
180,00 m²
Orientation d'arrière
Sud
Orientation d'façade
Nord

Terrain

Superficie terrain
394,00 m²
Jardin
Oui
Orientation du jardin
Sud
Orientation terrasse
Sud
Orientation terrasse 1
Sud

Garages / parking

Garage
0
Parkings extérieur
0
Parkings intérieur
0

Aménagement

Hall d'entrée
Oui
Salle de séjour
34,00 m²
Cuisine
24,00 m²
Bureau
9,00 m²
Hall de nuit
Oui
Chambre 1
13,00 m²
Chambre 2
12,00 m²
Chambre 3
25,00 m²
Salle de bain 1
12,00 m²
Toilettes
2

Confort

Meublé
Non
Détecteur de fumée
Oui
Ascenseur
Non
Piscine
Non

Espace spécifique

Atelier
Oui

énergie

PEB
262 kWh/m²/an
PEB code unique
20260212-0003799234-RES-1
Isolation
Oui
Double vitrage
Oui
Fenêtres
Pvc
Certificat d'électricité
Oui, conforme
Type de chauffage
Gaz
Réservoir d'eau
Oui

Techniques

Électricité
Oui
Fosse septique
Oui
Egouts
Non
Gaz
Oui
Eau
Oui

Information urbanistique

Affectation
Non communiqué
Permis de bâtir
Non communiqué
Permis de lotir
Non communiqué
Droit de préemption
Non communiqué
Certificat inventaire amiante
Oui
Certificat inventaire amiante information
Pas d'amiante / asbestveilig
Intimation en justice
Non communiqué
Zone innondable
pas situé en zone inondable
G-score
A
P-score
A
Servitude
Oui

Plus d'info pour cette propriété

Merci pour votre message, nous vous contacterons dès que possible.
Il y avait un problème lors de l'envoi du formulaire, s'il vous plaît essayer à nouveau.
(*) Veuillez remplir les champs obligatoires.